DOT / Your Public Transport: Established in 2010 under the name TUS, later renamed DOT / Din Offentlige Transport – a joint venture between DSB, Metro and Movia, created to ensure a seamless customer experience across all modes of public transport.
• Mission description: For the past 14 years, I’ve been part of building DOT from the ground up – developing its visual identity, traffic information design, screen design, marketing, digital media, and numerous ad hoc projects.
• Project owners and stakeholders: Movia | DSB | Metro | The Ministry of Transport | Lokaltog
• My function: As Movia’s representative, I served as Creative Manager within DOT’s Design Group, Signage Group, and several ad hoc initiatives involving marketing, traffic information, photography, and film production.
• Time period: 2011–2025
• Credits: Urgent Agency, Kontrapunkt, FUHR Design, Søren Moesgaard, Tue Schiørring Photography, Christian Geisnæs Photography
• Result: The BRT project received state funding and the expected political support. The project and political process are still ongoing.
Photo: Tue Schiørring, My function: Creative manager/MOVIA/DOT
BRANDING FILM
Agency & Productions Company: Forte Advice
My function: Creative manager & In house producer/MOVIA/DOT
DESIGN MANUAL FOR WAYFINDING AND
TRAFFIC INFORMATION SCREENS
Featured pages
My function: Creative manager/MOVIA/DOT Signs group
Credit: Kontrapunkt, Mikael Fuhr, Jannik Brandstrup Frithioff and DOT Signs group
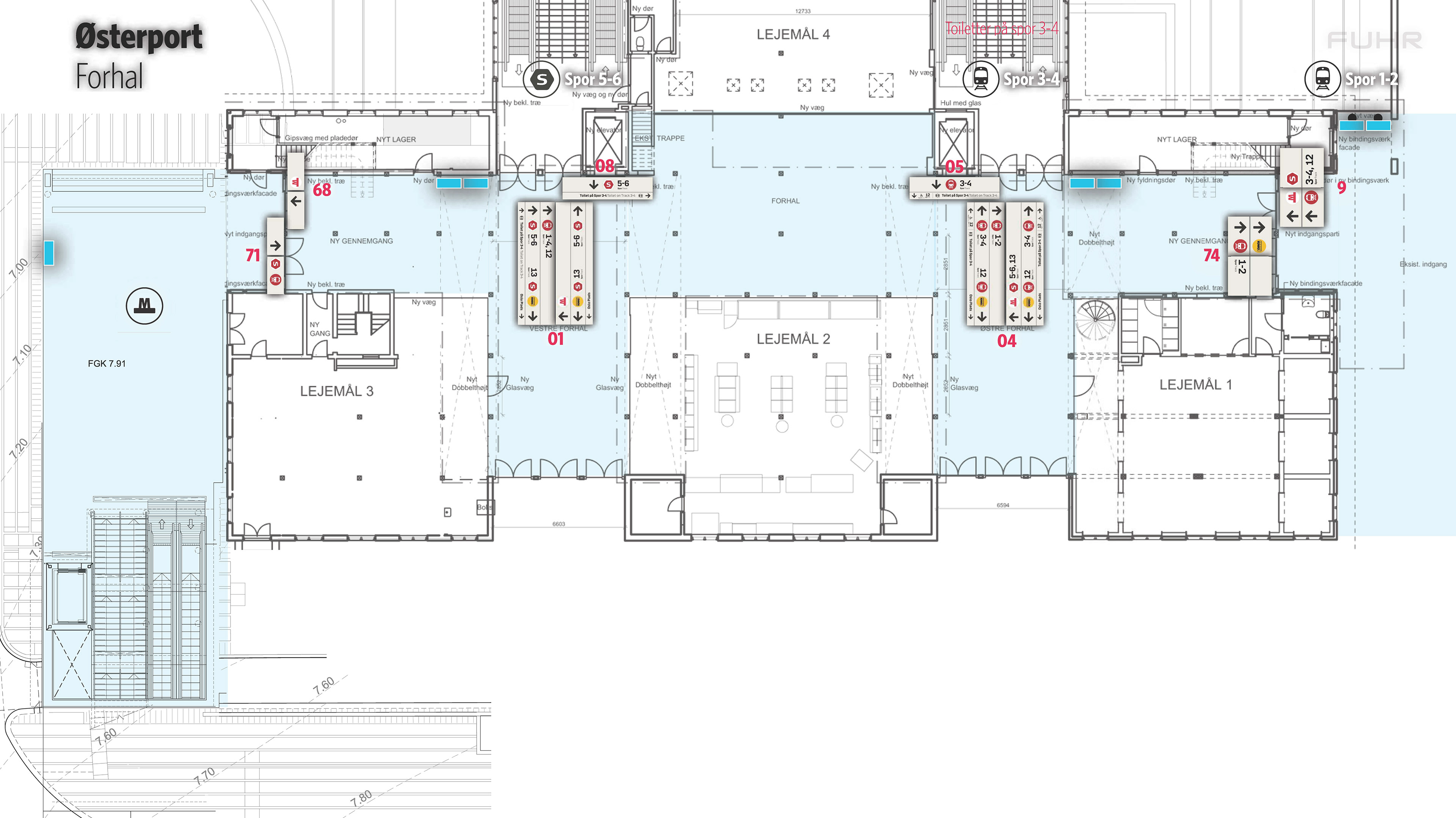
SIGN PLAN FOR ØSTERPORT ST.
Project: All 21 DOT stations needed to have sign plans made. Here is an example; Østerport st.
My function: Creative manager and designer/MOVIA/DOT Signs group
Credit: Kontrapunkt, Mikael Fuhr and DOT Signs group
My function: Creative manager and designer/MOVIA/DOT Signs group
Credit: Kontrapunkt, Mikael Fuhr and DOT Signs group
DESIGN MANUAL FOR 3D STATION MAP
My function: Creative manager/MOVIA/DOT Signs group
Credit: Urgent Agency and DOT Signs group
WAYFINDING VIDEO
Production company: Frame by Frame,
My function: Creative director and in-house producer/MOVIA/DOT
My function: Creative director and in-house producer/MOVIA/DOT
MUNICIPAL LINE MAP DESIGN
Project: Development of a new bus route map for all municipalities on Zealand
My function: Creative manager, Design and creative project manager
Credit: Design: Bysted, Michael V. Madsen/Movia and Movia Traffic Information Department.
My function: Creative manager, Design and creative project manager
Credit: Design: Bysted, Michael V. Madsen/Movia and Movia Traffic Information Department.
Wayfinding at The CPH Bus Terminal
Client: Movia and Copenhagen City
Desig: Michael V. Madsen , Mikael Fuhr & Søren Moesgaard
My function: Creative manager & designer/MOVIA/DOT Signs group
DESIGN FOR COLORED BUSDISPLAYS
Project: New design for colored bus destination displays.
My function: Creative manager, Project manager and design
Credit: Design: Søren Moesgaard, Michael V. Madsen/Movia, project manager Lars Wendelboe Budtz/Movia
My function: Creative manager, Project manager and design
Credit: Design: Søren Moesgaard, Michael V. Madsen/Movia, project manager Lars Wendelboe Budtz/Movia
DIGITAL BUS LINE DISPLAY DESIGN
Project: Development of screen design for a digital bus line panel
My function: Creative manager, creative project manager and design
Credit: Design: Michael V. Madsen/Movia, project manager Lars Wendelboe Budtz/Movia and Anders Møller/Movia
My function: Creative manager, creative project manager and design
Credit: Design: Michael V. Madsen/Movia, project manager Lars Wendelboe Budtz/Movia and Anders Møller/Movia
TIMING REPORT FOR SCREEN DISPLAYS
Project: Timing report for Traffic Information screens in the bus. When will what be shown on the screen, real time.
My function: Creative manager and creative project manager
Credit: Design: Søren Moesgaard
My function: Creative manager and creative project manager
Credit: Design: Søren Moesgaard
EXPLAINER FILM
Productions Company: Copenhagen Film
My function: Creative manager & In house producer/MOVIA/DOT
TRAFFIC INFORMATION UNIVERSE
Client: DOT/DSB/METRO/MOVIA
Design: Forte Advice
My function: Creative manager & designer/MOVIA/DOT